Effettua
ricerca

Casa in Affitto a Tarcento

Tarcento, frazione.

Casetta in Affitto con ampio scoperto.

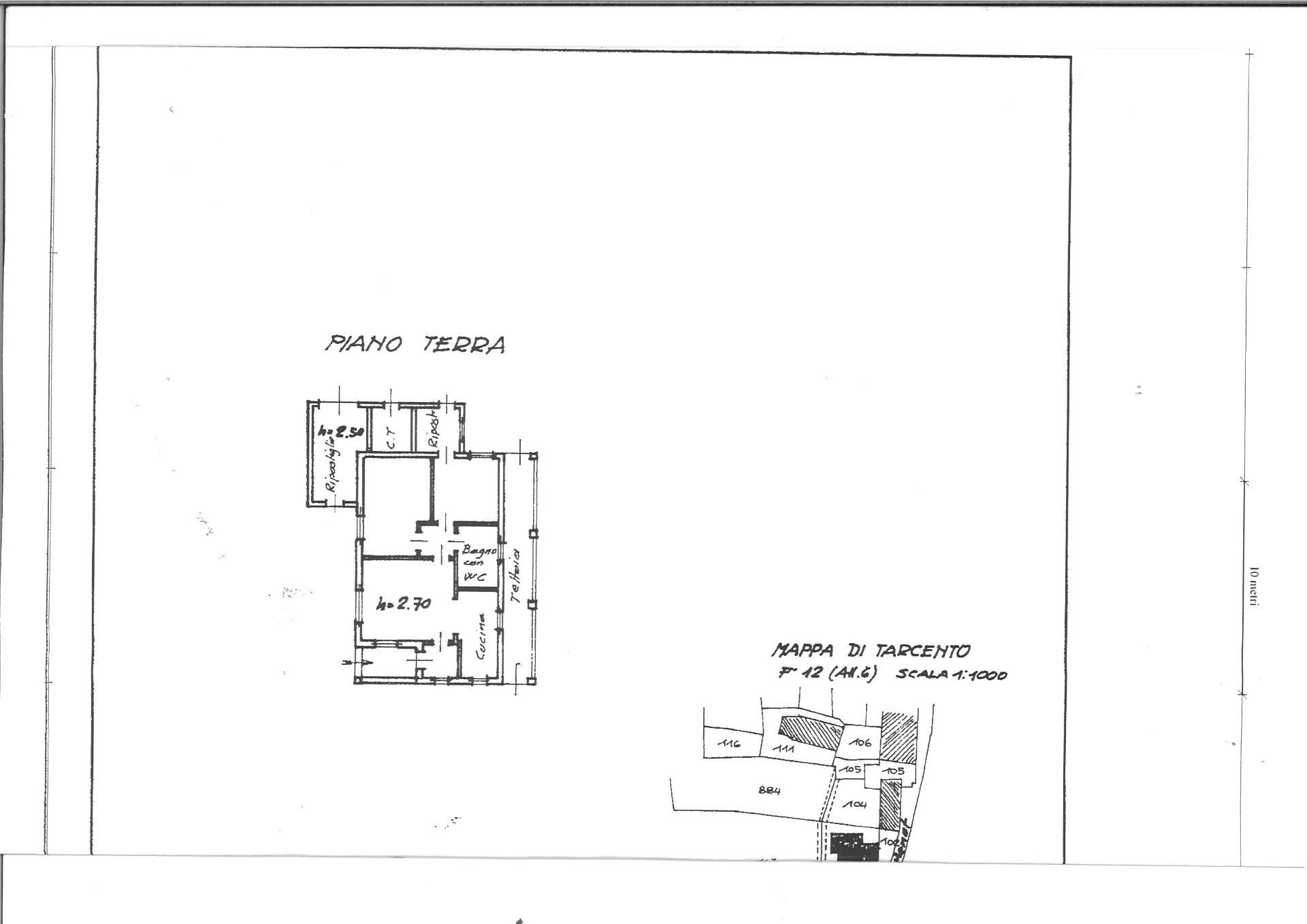
La Casa, si sviluppa su piano unico per una superficie di circa 80 M², è composta da ingresso, soggiorno con angolo cottura, bagno, e due stanze.

Caratteristica della Casa è un ampio scoperto di circa 650 mq dove potersi rilassare e godere di momenti di tranquillità all'aria aperta o creare un orto.

Ci sono anche utili accessori quali un garage di 28 mq, ripostigli e una comoda lavanderia, tutto al piano terra.

L'abitazione è riscaldata tramite un impianto a radiatori alimentato da una caldaia a metano.

L'immobile non è arredato, le finiture sono modeste, ma con un pò di personalizzazione diventerà carina e confortevole.

Questa Casa in Affitto a Tarcento è l'occasione per chi desidera vivere in mezzo alla natura, nella tranquillità della periferia e con tanto spazio verde a disposizione.

Potete contattarci per qualsiasi informazione e/o una visita per questa Casa in Affitto in frazione di Tarcento

80 mq 3 Locali 2 Camere 1 Bagni
Codice: 4069 € 470

Classe energetica

G
Informazioni immobile
Codice: 4069
Contratto: Affitto
Tipologia: Casa
Regione: Friuli Venezia Giulia
Provincia: Udine
Comune: Tarcento
Prezzo: € 470
Totale mq: 80 mq
Camere: 2
Bagni: 1
Locali: 3
Stato conservazione: Mediocre
Piano: Piano terra
Riscaldamento: Autonomo
Posto auto: Scoperto
Termosifoni: tradizionali
Età costruzione: 1950
Disponibile: Si
Giardino: Privato, 640 mq
Cucina: Angolo Cottura
Box: Singolo
Posizione: Periferica
Mappa immobile

Ultimo aggiornamento 23-09-2025