Effettua
ricerca

Appartamento in Affitto a Udine

Zona ZONA OSPEDALE

Appartamento in Affitto con due camere, zona Chiavris.

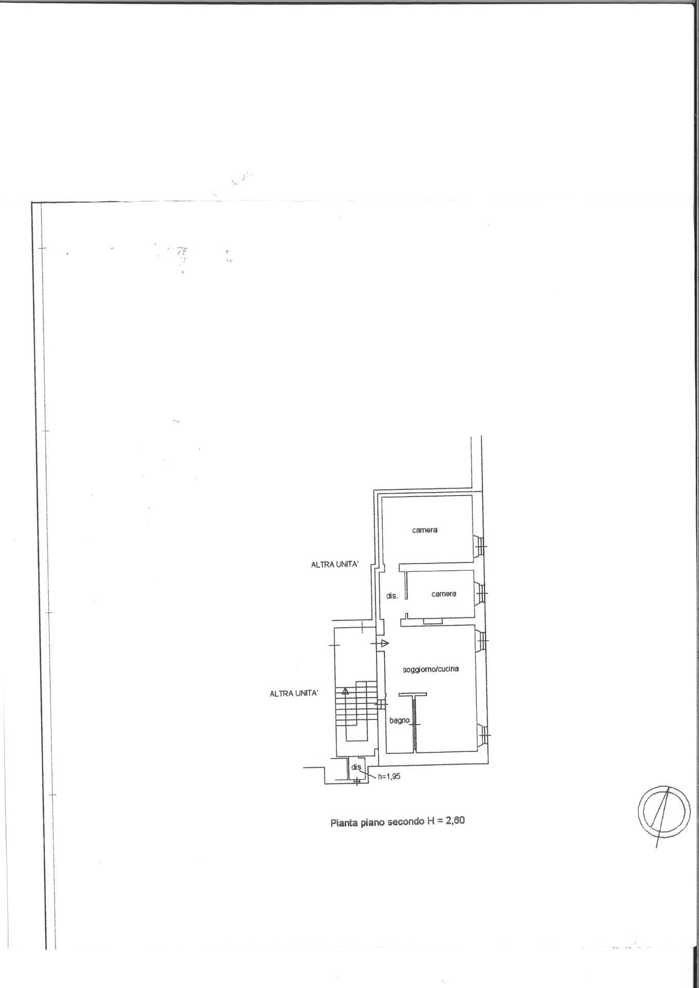
In palazzo storico proponiamo elegante Appartamento con due camere al secondo piano senza ascensore.
L'immobile è composto da una zona living ampia e luminosa con cucina a vista, disimpegno, camera singola, camera matrimoniale e bagno con box doccia.

L'Appartamento è stato completamente ristrutturato nel 2017, viene affittato arredato .
La zona giorno presenta delle bellissime travi a vista che conferiscono fascino e oiriginalità all'ambiente, tutti gli spazi sono stati sfruttati al meglio, nel disimpegno della zona notte due nicchie sono diventate due comodi ripostigli.

Il riscaldamento è autonomo, è da poco stato installato un impianto di condizionamento e inverter /pompa di calore, molto utile nelle mezze stagioni, prima dell'accensione dell'impianto di riscaldamento. Le spese condominiali ammontano a circa € 40,00 mensili.
La classe energetica è D.

Questo Appartamento è la soluzione ideale per chi vuole vivere in una delle più belle zona di Udine, dotata di tutte le comodità e i servizi e dalla quale si può raggiungere il centro anche a piedi.

Potete contattarci per qualsiasi informazione e/o visita per questo Appartamento bicamere in vendita a Udine, zona Chiavris.

85 mq 3 Locali 2 Camere 1 Bagni
Codice: 4075 € 680

Classe energetica

D
Informazioni immobile
Codice: 4075
Contratto: Affitto
Tipologia: Appartamento
Regione: Friuli Venezia Giulia
Provincia: Udine
Comune: Udine
Zona: ZONA OSPEDALE
Prezzo: € 680
Totale mq: 85 mq
Camere: 2
Bagni: 1
Locali: 3
Stato conservazione: Ottimo
Piano: 2
Piani totali: 3
Riscaldamento: Autonomo
Infissi: legno
Termosifoni: tradizionali
Appartamenti Totali: 8
Età costruzione: 1900
Stato attuale: Dato in locazione
Spese condominio: € 40
Esposizione: est
Cucina: A Vista
Posizione: Semicentrale
Nelle vicinanze
Palestre
Centri Benessere
Campi da Calcio
Complessi Sportivi
Campi da Tennis
Piste Ciclabili
Parchi Giochi
Stazione Ferroviaria
Trasporti Pubblici
Asilo
Scuole Elementari
Scuole Medie
Scuole Superiori
Bar
Uffici postali
Centri commerciali
Uffici comunali
Mappa immobile

Ultimo aggiornamento 31-01-2026