Effettua
ricerca

Casa in Affitto a Udine

Zona CENTRO STORICO

Casa in Affitto in centro a Udine, int. via Poscolle

Situata nel cuore del centro di Udine, questa Casa in Affitto rappresenta un'occasione imperdibile per chi desidera vivere in una delle zone più prestigiose e richieste della città.

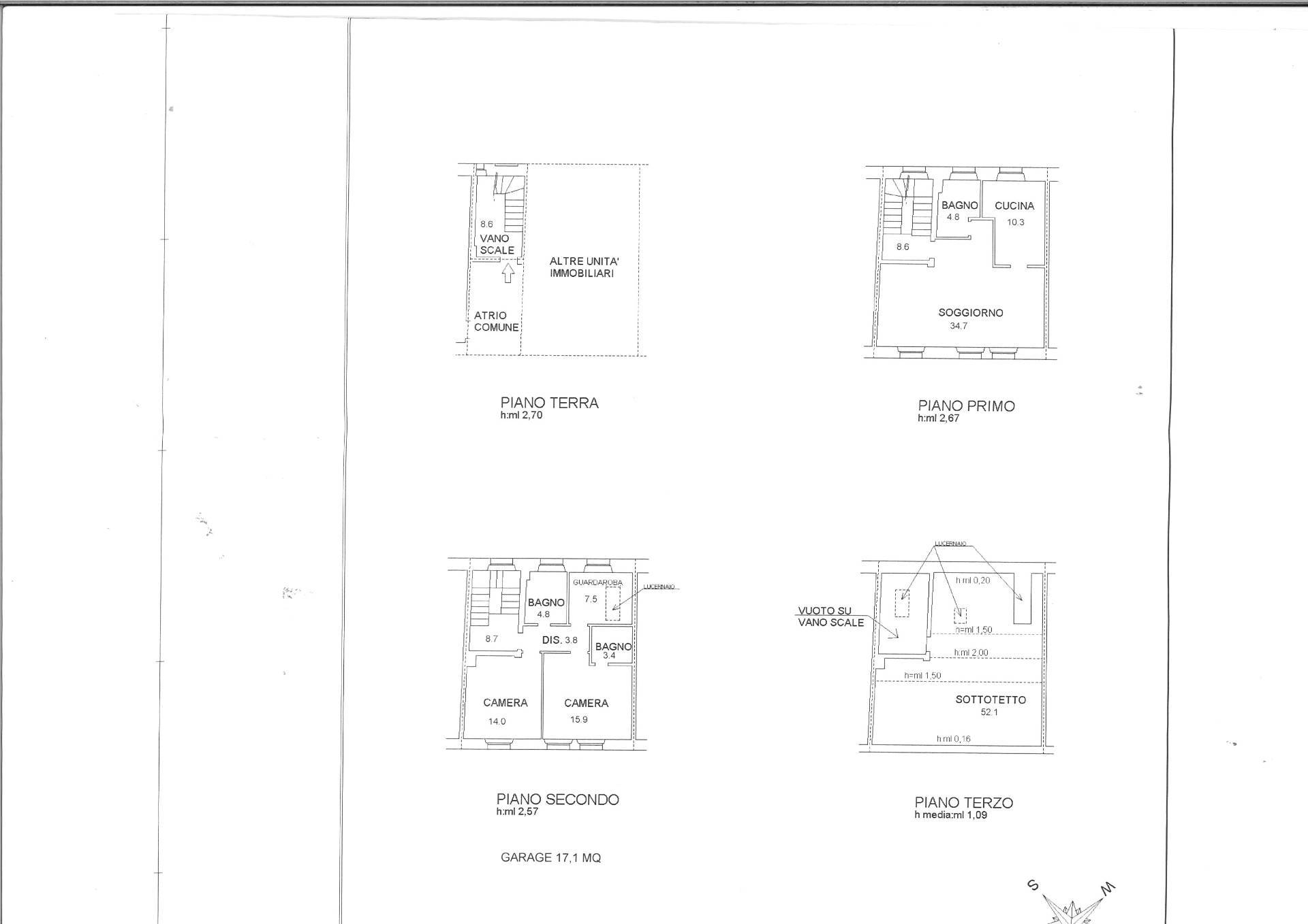
Si tratta di una Casa in linea con: ingresso al piano terra utile per lasciare scarpe e giacche prima di salire al primo piano dove troviamo una bella zona living suddivisa tra salotto-zona pranzo, cucina separata e abitabile e un bagno, al piano superiore due comode camere di cui la matrimoniale con bagno padronale e altro bagno a servizio della seconda camera oltre a una stanza attrezzata come guardaroba. Vi è infine, sul vano scale, una botola con scala retrattile da estrarre all'occorrenza e che permette di accedere al piano sottotetto utile come deposito.

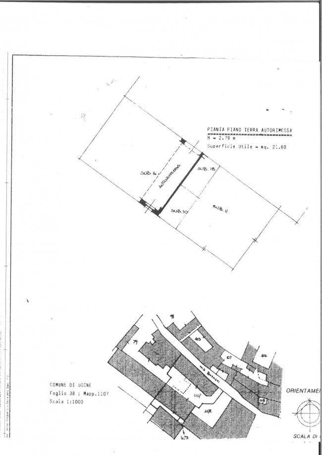
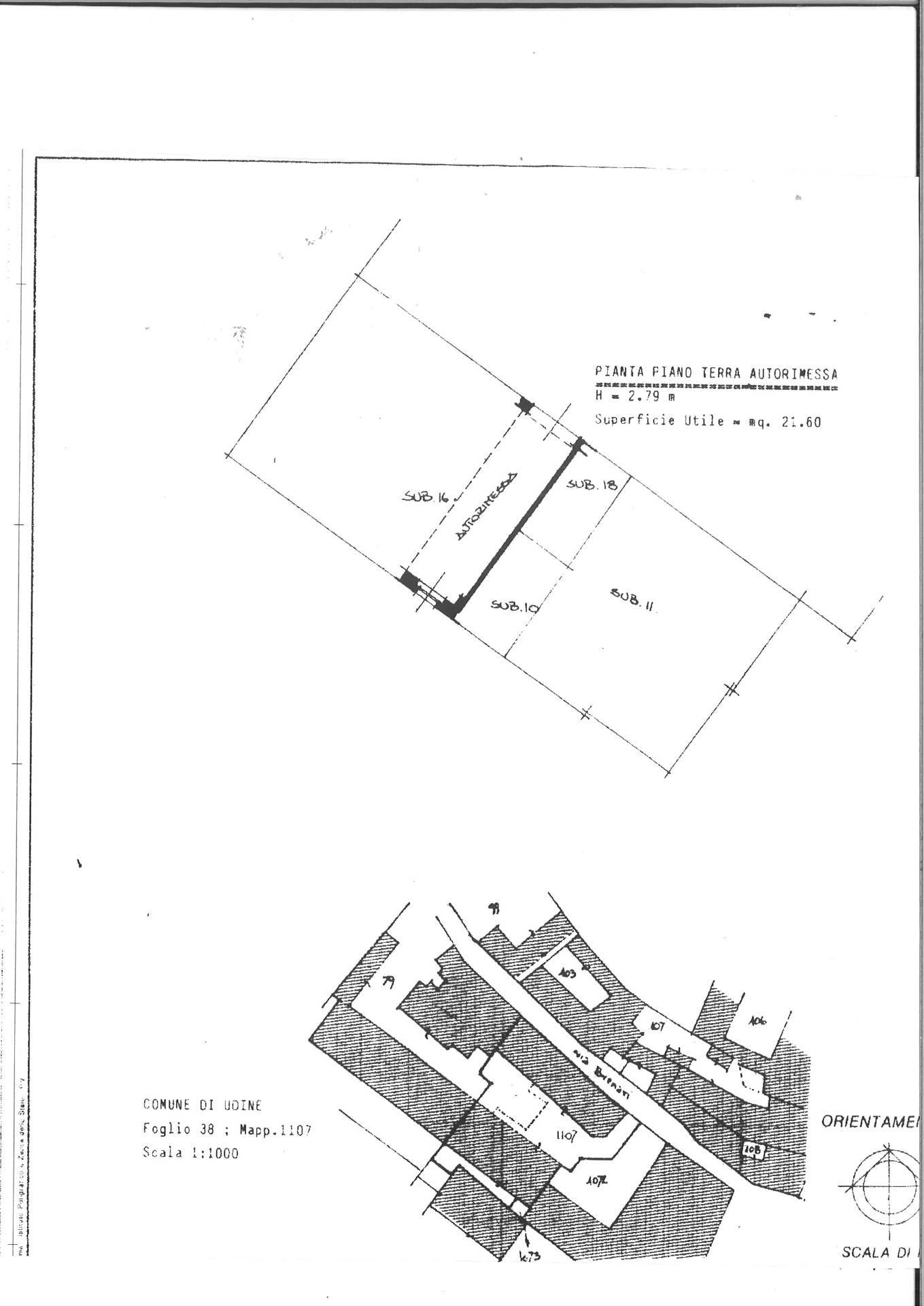
Un valore aggiunto di questa Casa in Affitto è il box auto doppio posizionato proprio sotto l'abitazione, perfetto per chi possiede due veicoli o per chi desidera avere un'area di parcheggio sicura e riservata.

Il riscaldamento autonomo a metano garantisce un comfort abitativo ottimale e un'ottima gestione delle spese di consumo inoltre questa Casa in Affitto è dotata di aria condizionata.

La Casa viene affittata arredata di cucina, bagni e armadi del guardaroba.

In sintesi, questa Casa in Affitto a Udine in zona centro è l'ideale per chi desidera una soluzione abitativa di prestigio, in una zona comoda e servita dai mezzi pubblici in un contesto gradevole e curato.

Potete contattarci per qualsiasi informazione e/o visita per questa Casa in Affitto a Udine centro.

Sono richieste referenze.

160 mq 5 Locali 2 Camere 3 Bagni
Codice: 4077 € 1.100

Classe energetica

F
Informazioni immobile
Codice: 4077
Contratto: Affitto
Tipologia: Casa
Regione: Friuli Venezia Giulia
Provincia: Udine
Comune: Udine
Zona: CENTRO STORICO
Prezzo: € 1.100
Totale mq: 160 mq
Camere: 2
Bagni: 3
Locali: 5
Stato conservazione: Ottimo
Piano: Multipiano
Piani totali: 3
Riscaldamento: Autonomo
Infissi: legno
Termosifoni: tradizionali
Età costruzione: 1990
Stato attuale: Dato in locazione
Spese condominio: € 30
Giardino: Comune
Cucina: Semiabitabile
Box: Doppio
Nelle vicinanze
Palestre
Centri Benessere
Campi da Calcio
Complessi Sportivi
Campi da Tennis
Piste Ciclabili
Parchi Giochi
Stazione Ferroviaria
Trasporti Pubblici
Asilo
Scuole Elementari
Scuole Medie
Scuole Superiori
Bar
Uffici postali
Centri commerciali
Uffici comunali
Mappa immobile

Ultimo aggiornamento 09-04-2026